一戸建て 金沢市若宮町チ
価格5,770万円
所在地金沢市若宮町チ32番地
土地面積505.99㎡(153.06坪)
部屋タイプ
担当者からのオススメポイント
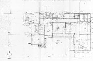
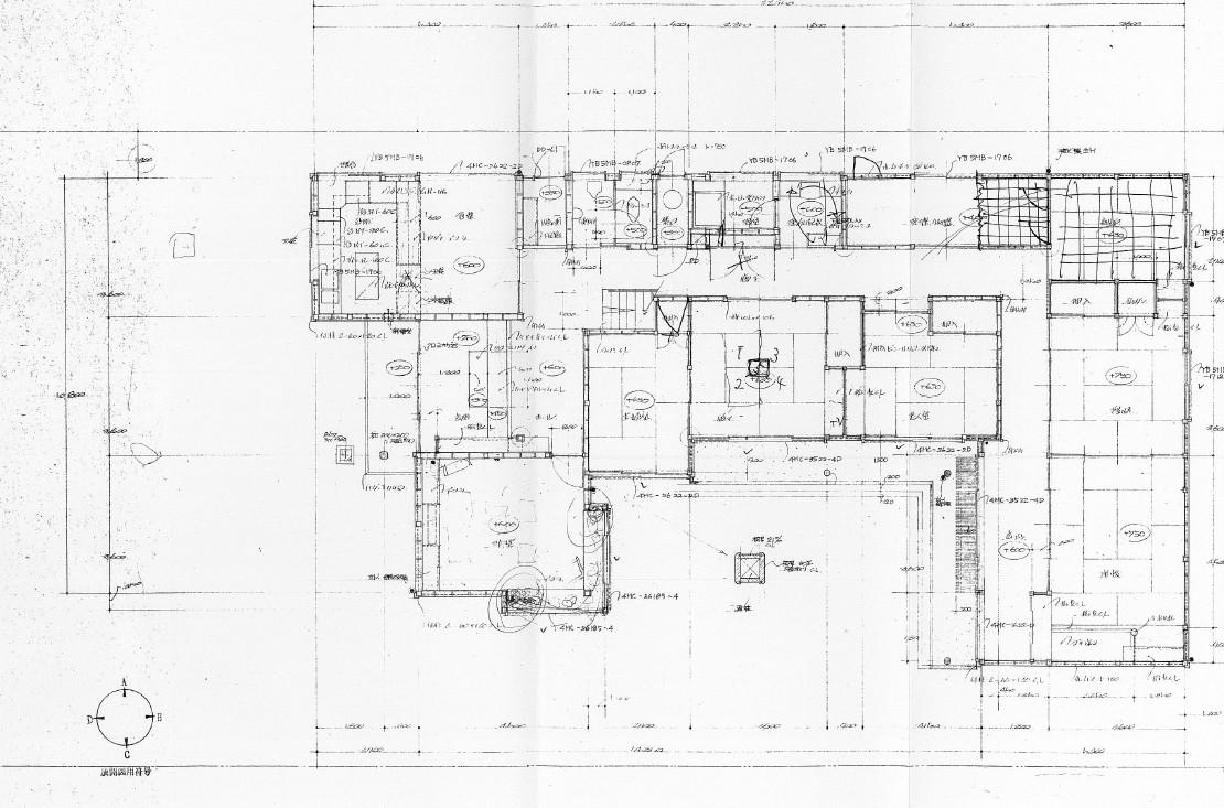
9DKのこれぞ和の邸宅です。築年数を全く感じさせません。ぜひお客様の目で確かめてください!
お部屋数が豊富なので、飲食業等もお勧めです。












物件詳細
| 所在地 | 金沢市若宮町チ32番地 | ||
|---|---|---|---|
| 価格 | 5,770万円 | ||
| 土地面積 | 505.99㎡(153.06坪) | 地目 | 宅地 |
| 建物面積 | 273.60㎡(82.76坪) 車庫22.80㎡ | 間口 | 16.5M |
| 建物区分 | 部屋タイプ | ||
| 延床面積 | 構造 | 木造瓦葺2階建て | |
| 間取り | 9DK | 建築年月 | 1978年2月新築 |
| 築年数 | |||
| 駐車台数 | 3台 | ||
| 電気 | 北陸電力 | ガス | プロパン |
| 飲水 | 公営 | 排水 | 下水道 |
| 道路種別 | 公道 | 道路幅員 | 5M |
| 私道負担 | 舗装 | ||
| 用途地域 | 準工業 | 都市計画区域 | 市街化 |
| 建ぺい率 | 60% | 容積率 | 200% |
| 小学校 | 戸板小学校 | 中学校 | 長田中学校 |
| 現況 | 入居中 | 交通機関 | 二口町バス停 徒歩3分 |
| 引渡日 | 相談 | 取引態様 | 一般 |
| 建築条件 | 保険料 | ||
| 共益費 | 給湯 | ||
| エレベーター | エアコン | ||
| 設備 | |||
| 備考 | |||







